Pojemnik do betonu z wylewem centralnym / dźwignią spustową oraz obrotowe ramie
- Wysyłka w 24h
- Pokrycie magazynowe
- Pomoc w wyborze produktu
Pojemnik do betonu z wylewem centralnym i dźwignią spustową zapewnia precyzyjne dozowanie mieszanki oraz wygodną kontrolę nad jej przepływem. Solidna konstrukcja pozwala na bezpieczny transport, a dźwignia ułatwia dokładne sterowanie otwarciem zasuwy. Idealny do prac żelbetowych wymagających sprawnego i precyzyjnego betonowania.
Pojemnik do betonu z wylewem centralnym i dźwignią spustową to praktyczne akcesorium zbrojeniowe, które znacząco usprawnia proces podawania mieszanki betonowej. Centralnie umieszczony wylew zapewnia równomierne prowadzenie betonu, natomiast dźwignia spustowa pozwala na płynne i kontrolowane otwieranie zasuwy. Dzięki temu operator może dokładnie regulować ilość i tempo wypływu betonu, co jest szczególnie ważne przy elementach konstrukcyjnych o mniejszej przestrzeni roboczej. Konstrukcja pojemnika jest stabilna i dostosowana do podwieszania, co ułatwia transport przy użyciu dźwigu.
Najważniejsze zalety
-
centralny wylew umożliwiający precyzyjne podawanie mieszanki,
-
dźwignia spustowa pozwalająca na kontrolowane otwarcie i zamknięcie zasuwy,
-
solidna, wytrzymała konstrukcja,
-
łatwa obsługa nawet przy intensywnym użytkowaniu,
-
proste czyszczenie i konserwacja.

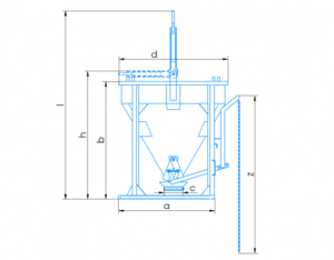
| Typ | Pojemność, m3 | h, mm | b, mm | d, mm | a, mm | c, mm | l, cm | z, cm | Waga, kg | Obciążenie, kg |
| DR-0.5 | 0.50 | 1400 | 1300 | 1280 | 1280 | 250 | 204 | 400 | 200 | 1500 |
| DR-0.75 | 0.75 | 1650 | 1500 | 1480 | 1480 | 250 | 234 | 400 | 300 | 3000 |
| DR-1.0 | 1.00 | 1750 | 1600 | 1480 | 1480 | 250 | 244 | 400 | 320 | 3000 |
| DR-1.2 | 1.20 | 1850 | 1600 | 1580 | 1580 | 250 | 249 | 400 | 340 | 4000 |
| DR-1.5 | 1.50 | 1950 | 1750 | 1580 | 1580 | 250 | 264 | 400 | 360 | 4000 |
Zastosowanie produktu
Pojemnik świetnie sprawdza się przy pracach żelbetowych, gdzie liczy się dokładne dozowanie betonu — podczas zalewania słupów, ścian, fundamentów oraz innych elementów wymagających centralnego wylewu. Umożliwia sprawniejszą organizację pracy i zwiększa kontrolę nad procesem betonowania.









